Nokopēts
Rīga, Stacijas laukums 2
Kadastra numurs: | 01000042004 |
---|---|
Objekta veids: | Reklāmas laukums, Komerctelpas (cits), Tirdzniecība |
Nomājamie objekti
Nosaukums
Objekta veids
Platība (m2)
Papildu maksājumi (€/m2 mēnesī)
Noma/sākumcena (€/mēnesī)
Kopsumma bez PVN (€/mēnesī)
Informācija par izsoli
Dokumenti
Foto un video galerija (1)
Apraksts
Kontakti
Izsoles/konkursa laiks: | 31.07.2025 - 18.08.2025 12:00 |
Pieteikšanās termiņš: | 18.08.2025 12:00 (beidzies) |
Izsoles solis: | - |
Nodrošinājuma summa: | - |
Maksimālais nomas termiņš: | 5 gadi |
Piedāvājuma iesniegšanas vieta: | Rīga, Emīlijas Benjamiņas iela 3, LV-1050, 100 kab. |
Izsoles veids: | rakstiska |
Izsoles kārta: | Pirmreizēja |
Publicēts: | 31.07.2025 |
Pretendents piedāvājumu var iesniegt:
-) papīra formā iesniedzot personīgi LDz Kancelejā vai nosūtot pa pastu: Rīga, Emīlijas Benjamiņas iela 3, LV-1050, 100 kab., uz aploksnes norādot: "Komerdarbības direkcijas Nekustamā īpašumu pakalpojumu daļa";
-) elektroniskā formātā nosūtot uz info@ldz.lv ar norādi NOMAS IZSOLE.
Dokumenti
Foto un video galerija

Reklāmas laukums
Kadastra apzīmējums: | 01000042004001 |
Platība (m2): | 130 |
Lietošanas mērķis: | 1241 - Sakaru, stacijas, termināļa telpu grupa |
Apraksts:
Iznomāšanai paredzētais objekts: reklāmas laukums nedzīvojamā iekštelpā 20m x 5,5m.
Lietošanas mērķis: reklāmas vieta (no ieejas pa labi).
Minimālā nomas maksa 1500,00 EUR mēnesī, bez PVN.
Drošības depozīts: viena mēneša nomas maksas apmērā.
Papildus nomas maksai tiek piemērotas administratīvās izmaksas par līguma sagatavošanu.
Līguma sagatavošanas maksa (vienreizēja maksa): 15,00 EUR.
Kontakti
Organizācijas nosaukums: | VAS "Latvijas dzelzceļš" |
Vārds uzvārds: | Aleksejs Šveics |
E-pasts: | aleksejs.sveics@ldz.lv |
Tālrunis: | 26019140 |
Informācija par izsoli
Dokumenti
Foto un video galerija (9)
Apraksts
Kontakti
Izsoles/konkursa laiks: | 26.08.2025 - 10.10.2025 12:00 |
Pieteikšanās termiņš: | 10.10.2025 12:00 (beidzies) |
Izsoles solis: | - |
Nodrošinājuma summa: | - |
Maksimālais nomas termiņš: | - |
Piedāvājuma iesniegšanas vieta: | Rīga, Emīlijas Benjamiņas iela 3, LV-1050, 100 kab. |
Izsoles veids: | rakstiska |
Izsoles kārta: | Pirmreizēja |
Publicēts: | 26.08.2025 |
Pretendents piedāvājumu var iesniegt:
-) papīra formā iesniedzot personīgi LDz Kancelejā vai nosūtot pa pastu: Rīga, Emīlijas Benjamiņas iela 3, LV-1050, 100 kab., uz aploksnes norādot: "Komerdarbības direkcijas Nekustamā īpašumu pakalpojumu daļa";
-) elektroniskā formātā nosūtot uz info@ldz.lv ar norādi NOMAS IZSOLE.
Dokumenti
Foto un video galerija









Komerctelpas (cits)
Kadastra apzīmējums: | 01000042004002 |
Platība (m2): | 130.1 |
Lietošanas mērķis: | 1241 - Sakaru, stacijas, termināļa telpu grupa |
Apraksts:
Iznomāšanai paredzētais objekts: nedzīvojamās iekštelpas Nr.72-78; 81;82;84 un daļa no 83.
Lietošanas mērķis: tirdzniecības telpas, dažādas komercdarbības vajadzībām.
Minimālā nomas maksa 10,00 EUR/m², bez PVN.
Drošības depozīts: viena mēneša nomas maksas apmērā.
Papildus nomas maksai tiek piemērotas administratīvās izmaksas par līguma sagatavošanu.
Līguma sagatavošanas maksa (vienreizēja maksa): 15,00 EUR.
Kontakti
Organizācijas nosaukums: | VAS "Latvijas dzelzceļš" |
Vārds uzvārds: | Aleksejs Šveics |
E-pasts: | aleksejs.sveics@ldz.lv |
Tālrunis: | 26019140 |
Informācija par izsoli
Dokumenti
Foto un video galerija (2)
Apraksts
Kontakti
Izsoles/konkursa laiks: | 26.08.2025 - 10.09.2025 12:00 |
Pieteikšanās termiņš: | 10.09.2025 12:00 (beidzies) |
Izsoles solis: | - |
Nodrošinājuma summa: | - |
Maksimālais nomas termiņš: | 2 gadi |
Piedāvājuma iesniegšanas vieta: | Rīga, Emīlijas Benjamiņas iela 3, LV-1050, 100 kab. |
Izsoles veids: | rakstiska |
Izsoles kārta: | Pirmreizēja |
Publicēts: | 26.08.2025 |
Pretendents piedāvājumu var iesniegt: -) papīra formā iesniedzot personīgi LDz Kancelejā vai nosūtot pa pastu: Rīga, Emīlijas Benjamiņas iela 3, LV-1050, 100 kab., uz aploksnes norādot: "Komerdarbības direkcijas Nekustamā īpašumu pakalpojumu daļa";-) elektroniskā formātā nosūtot uz info@ldz.lv ar norādi NOMAS IZSOLE.
Dokumenti
Foto un video galerija


Tirdzniecība
Kadastra apzīmējums: | 01000042004002 |
Platība (m2): | 3 |
Lietošanas mērķis: | 1241 - Sakaru, stacijas, termināļa telpu grupa |
Apraksts:
Iznomāšanai paredzētais objekts: vieta.
Lietošanas mērķis: vieta pārtikas/dzērienu tirdzniecību aparātu uzstādīšanai.
Minimālā nomas maksa 700,00 EUR/m² par vietu, bez PVN.
Papildus nomas maksai tiek piemērotas administratīvās izmaksas par līguma sagatavošanu.
Līguma sagatavošanas maksa (vienreizēja maksa): 15,00 EUR.
Kontakti
Organizācijas nosaukums: | VAS "Latvijas dzelzceļš" |
Vārds uzvārds: | Aleksejs Šveics |
E-pasts: | aleksejs.sveics@ldz.lv |
Tālrunis: | +371 26019140 |
Informācija par izsoli
Dokumenti
Foto un video galerija (9)
Apraksts
Kontakti
Izsoles/konkursa laiks: | 16.09.2025 - 01.10.2025 12:00 |
Pieteikšanās termiņš: | 01.10.2025 12:00 (beidzies) |
Izsoles solis: | - |
Nodrošinājuma summa: | - |
Maksimālais nomas termiņš: | - |
Piedāvājuma iesniegšanas vieta: | Rīga, Emīlijas Benjamiņas iela 3, LV-1050, 100 kab. |
Izsoles veids: | rakstiska |
Izsoles kārta: | Pirmreizēja |
Publicēts: | 16.09.2025 |
Pretendents piedāvājumu var iesniegt:
-) papīra formā iesniedzot personīgi LDz Kancelejā vai nosūtot pa pastu: Rīga, Emīlijas Benjamiņas iela 3, LV-1050, 100 kab., uz aploksnes norādot: "Komerdarbības direkcijas Nekustamā īpašumu pakalpojumu daļa";
-) elektroniskā formātā nosūtot uz info@ldz.lv ar norādi NOMAS IZSOLE.
Dokumenti
Foto un video galerija









Komerctelpas (cits)
Kadastra apzīmējums: | 01000042004002 |
Platība (m2): | 130.1 |
Lietošanas mērķis: | 1241 - Sakaru, stacijas, termināļa telpu grupa |
Apraksts:
Iznomāšanai paredzētais objekts: nedzīvojamās iekštelpas Nr.72-78; 81;82;84 un daļa no 83.
Lietošanas mērķis: tirdzniecības telpas, dažādas komercdarbības vajadzībām.
Minimālā nomas maksa 10,00 EUR/m², bez PVN.
Papildus nomas maksai tiek piemērotas administratīvās izmaksas par līguma sagatavošanu.
Līguma sagatavošanas maksa (vienreizēja maksa): 15,00 EUR.
Kontakti
Organizācijas nosaukums: | VAS "Latvijas dzelzceļš" |
Vārds uzvārds: | Aleksejs Šveics |
E-pasts: | aleksejs.sveics@ldz.lv |
Tālrunis: | 26019140 |
Informācija par izsoli
Dokumenti
Foto un video galerija (3)
Apraksts
Kontakti
Izsoles/konkursa laiks: | 16.09.2025 - 01.10.2025 12:00 |
Pieteikšanās termiņš: | 01.10.2025 12:00 (beidzies) |
Izsoles solis: | - |
Nodrošinājuma summa: | - |
Maksimālais nomas termiņš: | 1 gads |
Piedāvājuma iesniegšanas vieta: | Rīga, Emīlijas Benjamiņas iela 3, LV-1050, 100 kab. |
Izsoles veids: | rakstiska |
Izsoles kārta: | Pirmreizēja |
Publicēts: | 16.09.2025 |
Pretendents piedāvājumu var iesniegt:
-) papīra formā iesniedzot personīgi LDz Kancelejā vai nosūtot pa pastu: Rīga, Emīlijas Benjamiņas iela 3, LV-1050, 100 kab., uz aploksnes norādot: "Komerdarbības direkcijas Nekustamā īpašumu pakalpojumu daļa";
-) elektroniskā formātā nosūtot uz info@ldz.lv ar norādi NOMAS IZSOLE.
Dokumenti
Foto un video galerija
.JPG_11-07-2025-01-28-34-large.jpg)


Komerctelpas (cits)
Kadastra apzīmējums: | 01000042004002 |
Platība (m2): | 45.6 |
Lietošanas mērķis: | 1241 - Sakaru, stacijas, termināļa telpu grupa |
Apraksts:
Iznomāšanai paredzētais objekts: nedzīvojamās iekštelpas Nr.88-92 un daļa no 83.
Lietošanas mērķis: tirdzniecības telpas, dažādas komercdarbības vajadzībām.
Minimālā nomas maksa 7,00 EUR/m², bez PVN.
Papildus nomas maksai tiek piemērotas administratīvās izmaksas par līguma sagatavošanu.
Līguma sagatavošanas maksa (vienreizēja maksa): 15,00 EUR.
Kontakti
Organizācijas nosaukums: | VAS "Latvijas dzelzceļš" |
Vārds uzvārds: | Aleksejs Šveics |
E-pasts: | aleksejs.sveics@ldz.lv |
Tālrunis: | 26019140 |
Informācija par izsoli
Dokumenti
Foto un video galerija (2)
Apraksts
Kontakti
Izsoles/konkursa laiks: | 16.09.2025 - 01.10.2025 12:00 |
Pieteikšanās termiņš: | 01.10.2025 12:00 (beidzies) |
Izsoles solis: | - |
Nodrošinājuma summa: | - |
Maksimālais nomas termiņš: | 1 gads |
Piedāvājuma iesniegšanas vieta: | Rīga, Emīlijas Benjamiņas iela 3, LV-1050, 100 kab. |
Izsoles veids: | rakstiska |
Izsoles kārta: | Pirmreizēja |
Publicēts: | 16.09.2025 |
Pretendents piedāvājumu var iesniegt:
-) papīra formā iesniedzot personīgi LDz Kancelejā vai nosūtot pa pastu: Rīga, Emīlijas Benjamiņas iela 3, LV-1050, 100 kab., uz aploksnes norādot:
"Komerdarbības direkcijas Nekustamā īpašumu pakalpojumu daļa";
-) elektroniskā formātā nosūtot uz info@ldz.lv ar norādi NOMAS IZSOLE.
Dokumenti
Foto un video galerija

_11-07-2025-02-17-51-large.jpg)
Komerctelpas (cits)
Kadastra apzīmējums: | 01000042004001 |
Platība (m2): | 19.5 |
Lietošanas mērķis: | 1241 - Sakaru, stacijas, termināļa telpu grupa |
Telpas nr.: | 7 |
Apraksts:
Iznomāšanai paredzētais objekts: nedzīvojamā iekštelpa Nr.7.
Lietošanas mērķis: noliktava, dažādas komercdarbības vajadzībām.
Minimālā nomas maksa 5,20 EUR/m², bez PVN.
Papildus nomas maksai tiek piemērotas administratīvās izmaksas par līguma sagatavošanu.
Līguma sagatavošanas maksa (vienreizēja maksa): 15,00 EUR.
Kontakti
Organizācijas nosaukums: | VAS "Latvijas dzelzceļš" |
Vārds uzvārds: | Aleksejs Šveics |
E-pasts: | aleksejs.sveics@ldz.lv |
Tālrunis: | 26019140 |
Informācija par izsoli
Dokumenti
Foto un video galerija (2)
Apraksts
Kontakti
Izsoles/konkursa laiks: | 16.09.2025 - 01.10.2025 12:00 |
Pieteikšanās termiņš: | 01.10.2025 12:00 (beidzies) |
Izsoles solis: | - |
Nodrošinājuma summa: | - |
Maksimālais nomas termiņš: | 1 gads |
Piedāvājuma iesniegšanas vieta: | Rīga, Emīlijas Benjamiņas iela 3, LV-1050, 100 kab. |
Izsoles veids: | rakstiska |
Izsoles kārta: | Pirmreizēja |
Publicēts: | 16.09.2025 |
Pretendents piedāvājumu var iesniegt:
-) papīra formā iesniedzot personīgi LDz Kancelejā vai nosūtot pa pastu: Rīga, Emīlijas Benjamiņas iela 3, LV-1050, 100 kab., uz aploksnes norādot:
"Komerdarbības direkcijas Nekustamā īpašumu pakalpojumu daļa";
-) elektroniskā formātā nosūtot uz info@ldz.lv ar norādi NOMAS IZSOLE.
Dokumenti
Foto un video galerija


Komerctelpas (cits)
Kadastra apzīmējums: | 01000042004001 |
Platība (m2): | 63.3 |
Lietošanas mērķis: | 1241 - Sakaru, stacijas, termināļa telpu grupa |
Telpas nr.: | 6 |
Apraksts:
Iznomāšanai paredzētais objekts: nedzīvojamā iekštelpa Nr.6 .
Lietošanas mērķis: noliktava, dažādas komercdarbības vajadzībām.
Minimālā nomas maksa 3,00 EUR/m², bez PVN.
Papildus nomas maksai tiek piemērotas administratīvās izmaksas par līguma sagatavošanu.
Līguma sagatavošanas maksa (vienreizēja maksa): 15,00 EUR.
Kontakti
Organizācijas nosaukums: | VAS "Latvijas dzelzceļš" |
Vārds uzvārds: | Aleksejs Šveics |
E-pasts: | aleksejs.sveics@ldz.lv |
Tālrunis: | 26019140 |
Informācija par izsoli
Dokumenti
Foto un video galerija (2)
Apraksts
Kontakti
Izsoles/konkursa laiks: | 16.09.2025 - 01.10.2025 12:00 |
Pieteikšanās termiņš: | 01.10.2025 12:00 (beidzies) |
Izsoles solis: | - |
Nodrošinājuma summa: | - |
Maksimālais nomas termiņš: | 1 gads |
Piedāvājuma iesniegšanas vieta: | Rīga, Emīlijas Benjamiņas iela 3, LV-1050, 100 kab. |
Izsoles veids: | rakstiska |
Izsoles kārta: | Pirmreizēja |
Publicēts: | 16.09.2025 |
Pretendents piedāvājumu var iesniegt:
-) papīra formā iesniedzot personīgi LDz Kancelejā vai nosūtot pa pastu: Rīga, Emīlijas Benjamiņas iela 3, LV-1050, 100 kab., uz aploksnes norādot:
"Komerdarbības direkcijas Nekustamā īpašumu pakalpojumu daļa";
-) elektroniskā formātā nosūtot uz info@ldz.lv ar norādi NOMAS IZSOLE.
Dokumenti
Foto un video galerija


Komerctelpas (cits)
Kadastra apzīmējums: | 01000042004001 |
Platība (m2): | 22.5 |
Lietošanas mērķis: | 1241 - Sakaru, stacijas, termināļa telpu grupa |
Telpas nr.: | 72 |
Apraksts:
Iznomāšanai paredzētais objekts: nedzīvojamā iekštelpa Nr.72 .
Lietošanas mērķis: noliktava, dažādas komercdarbības vajadzībām.
Minimālā nomas maksa 4,50 EUR/m², bez PVN.
Papildus nomas maksai tiek piemērotas administratīvās izmaksas par līguma sagatavošanu.
Līguma sagatavošanas maksa (vienreizēja maksa): 15,00 EUR.
Kontakti
Organizācijas nosaukums: | VAS "Latvijas dzelzceļš" |
Vārds uzvārds: | Aleksejs Šveics |
E-pasts: | aleksejs.sveics@ldz.lv |
Tālrunis: | 26019140 |
Informācija par izsoli
Dokumenti
Foto un video galerija (2)
Apraksts
Kontakti
Izsoles/konkursa laiks: | 16.09.2025 - 01.10.2025 12:00 |
Pieteikšanās termiņš: | 01.10.2025 12:00 (beidzies) |
Izsoles solis: | - |
Nodrošinājuma summa: | - |
Maksimālais nomas termiņš: | 1 gads |
Piedāvājuma iesniegšanas vieta: | Rīga, Emīlijas Benjamiņas iela 3, LV-1050, 100 kab. |
Izsoles veids: | rakstiska |
Izsoles kārta: | Pirmreizēja |
Publicēts: | 16.09.2025 |
Pretendents piedāvājumu var iesniegt:
-) papīra formā iesniedzot personīgi LDz Kancelejā vai nosūtot pa pastu: Rīga, Emīlijas Benjamiņas iela 3, LV-1050, 100 kab., uz aploksnes norādot:
"Komerdarbības direkcijas Nekustamā īpašumu pakalpojumu daļa";
-) elektroniskā formātā nosūtot uz info@ldz.lv ar norādi NOMAS IZSOLE.
Dokumenti
Foto un video galerija

_11-07-2025-02-23-26-large.jpg)
Komerctelpas (cits)
Kadastra apzīmējums: | 01000042004001 |
Platība (m2): | 31.9 |
Lietošanas mērķis: | 1241 - Sakaru, stacijas, termināļa telpu grupa |
Telpas nr.: | 73-76 |
Apraksts:
Iznomāšanai paredzētais objekts: nedzīvojamās iekštelpas Nr.73-76 .
Lietošanas mērķis: noliktava, dažādas komercdarbības vajadzībām.
Minimālā nomas maksa 4,50 EUR/m², bez PVN.
Papildus nomas maksai tiek piemērotas administratīvās izmaksas par līguma sagatavošanu.
Līguma sagatavošanas maksa (vienreizēja maksa): 15,00 EUR.
Kontakti
Organizācijas nosaukums: | VAS "Latvijas dzelzceļš" |
Vārds uzvārds: | Aleksejs Šveics |
E-pasts: | aleksejs.sveics@ldz.lv |
Tālrunis: | 26019140 |
Informācija par izsoli
Dokumenti
Foto un video galerija (2)
Apraksts
Kontakti
Izsoles/konkursa laiks: | 16.09.2025 - 01.10.2025 12:00 |
Pieteikšanās termiņš: | 01.10.2025 12:00 (beidzies) |
Izsoles solis: | - |
Nodrošinājuma summa: | - |
Maksimālais nomas termiņš: | 1 gads |
Piedāvājuma iesniegšanas vieta: | Rīga, Emīlijas Benjamiņas iela 3, LV-1050, 100 kab. |
Izsoles veids: | rakstiska |
Izsoles kārta: | Pirmreizēja |
Publicēts: | 16.09.2025 |
Pretendents piedāvājumu var iesniegt:
-) papīra formā iesniedzot personīgi LDz Kancelejā vai nosūtot pa pastu: Rīga, Emīlijas Benjamiņas iela 3, LV-1050, 100 kab., uz aploksnes norādot:
"Komerdarbības direkcijas Nekustamā īpašumu pakalpojumu daļa";
-) elektroniskā formātā nosūtot uz info@ldz.lv ar norādi NOMAS IZSOLE.
Dokumenti
Foto un video galerija


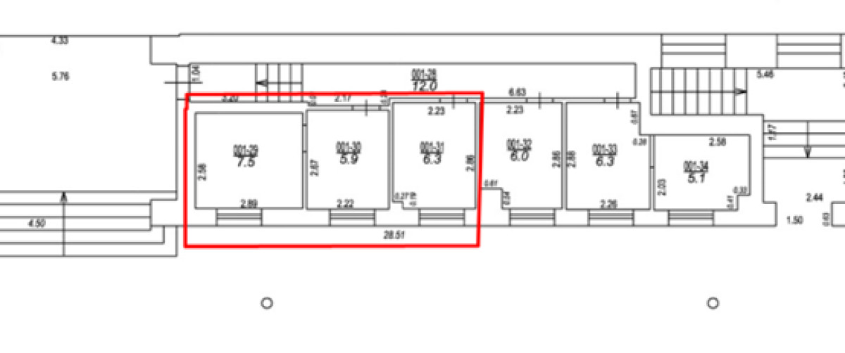
Komerctelpas (cits)
Kadastra apzīmējums: | 01000042004002 |
Platība (m2): | 110.4 |
Lietošanas mērķis: | 1241 - Sakaru, stacijas, termināļa telpu grupa |
Telpas nr.: | 53 |
Apraksts:
Iznomāšanai paredzētais objekts: nedzīvojamā iekštelpa Nr.53.
Lietošanas mērķis: noliktava, dažādas komercdarbības vajadzībām.
Minimālā nomas maksa 3,00 EUR/m², bez PVN.
Papildus nomas maksai tiek piemērotas administratīvās izmaksas par līguma sagatavošanu.
Līguma sagatavošanas maksa (vienreizēja maksa): 15,00 EUR.
Kontakti
Organizācijas nosaukums: | VAS "Latvijas dzelzceļš" |
Vārds uzvārds: | Aleksejs Šveics |
E-pasts: | aleksejs.sveics@ldz.lv |
Tālrunis: | 26019140 |
Informācija par izsoli
Dokumenti
Foto un video galerija (20)
Apraksts
Kontakti
Izsoles/konkursa laiks: | 16.09.2025 - 01.10.2025 12:00 |
Pieteikšanās termiņš: | 01.10.2025 12:00 (beidzies) |
Izsoles solis: | - |
Nodrošinājuma summa: | - |
Maksimālais nomas termiņš: | 1 gads |
Piedāvājuma iesniegšanas vieta: | Rīga, Emīlijas Benjamiņas iela 3, LV-1050, 100 kab. |
Izsoles veids: | rakstiska |
Izsoles kārta: | Pirmreizēja |
Publicēts: | 16.09.2025 |
Pretendents piedāvājumu var iesniegt:
-) papīra formā iesniedzot personīgi LDz Kancelejā vai nosūtot pa pastu: Rīga, Emīlijas Benjamiņas iela 3, LV-1050, 100 kab., uz aploksnes norādot:
"Komerdarbības direkcijas Nekustamā īpašumu pakalpojumu daļa";
-) elektroniskā formātā nosūtot uz info@ldz.lv ar norādi NOMAS IZSOLE.
Dokumenti
Foto un video galerija




















Komerctelpas (cits)
Kadastra apzīmējums: | 01000042004002 |
Platība (m2): | 488.6 |
Lietošanas mērķis: | 1241 - Sakaru, stacijas, termināļa telpu grupa |
Telpas nr.: | nedzīvojamās iekštelpas Nr.3-5; 8-15; 32-34; daļa no 2, 18, 19, 20, 21, 22, 24, 25 |
Apraksts:
Iznomāšanai paredzētais objekts: nedzīvojamās iekštelpas Nr.3-5; 8-15; 32-34; daļa no 2, 18, 19, 20, 21, 22, 24, 25 .
Lietošanas mērķis: birojs, dažādas komercdarbības vajadzībām.
Minimālā nomas maksa 5,00 EUR/m², bez PVN.
Papildus nomas maksai tiek piemērotas administratīvās izmaksas par līguma sagatavošanu.
Līguma sagatavošanas maksa (vienreizēja maksa): 15,00 EUR.
Kontakti
Organizācijas nosaukums: | VAS "Latvijas dzelzceļš" |
Vārds uzvārds: | Aleksejs Šveics |
E-pasts: | aleksejs.sveics@ldz.lv |
Tālrunis: | 26019140 |
Informācija par izsoli
Dokumenti
Foto un video galerija (21)
Apraksts
Kontakti
Izsoles/konkursa laiks: | 16.09.2025 - 01.10.2025 12:00 |
Pieteikšanās termiņš: | 01.10.2025 12:00 (beidzies) |
Izsoles solis: | - |
Nodrošinājuma summa: | - |
Maksimālais nomas termiņš: | 1 gads |
Piedāvājuma iesniegšanas vieta: | Rīga, Emīlijas Benjamiņas iela 3, LV-1050, 100 kab. |
Izsoles veids: | rakstiska |
Izsoles kārta: | Pirmreizēja |
Publicēts: | 16.09.2025 |
Pretendents piedāvājumu var iesniegt:
-) papīra formā iesniedzot personīgi LDz Kancelejā vai nosūtot pa pastu: Rīga, Emīlijas Benjamiņas iela 3, LV-1050, 100 kab., uz aploksnes norādot:
"Komerdarbības direkcijas Nekustamā īpašumu pakalpojumu daļa";
-) elektroniskā formātā nosūtot uz info@ldz.lv ar norādi NOMAS IZSOLE.
Dokumenti
Foto un video galerija





















Komerctelpas (cits)
Kadastra apzīmējums: | 01000042004002 |
Platība (m2): | 166.3 |
Lietošanas mērķis: | 1241 - Sakaru, stacijas, termināļa telpu grupa |
Telpas nr.: | nedzīvojamās iekštelpas Nr.2; 3; 18-29 |
Apraksts:
Iznomāšanai paredzētais objekts: nedzīvojamās iekštelpas Nr.2; 3; 18-29.
Lietošanas mērķis: dažādas komercdarbības vajadzībām, noliktava.
Minimālā nomas maksa 3,50 EUR/m², bez PVN.
Papildus nomas maksai tiek piemērotas administratīvās izmaksas par līguma sagatavošanu.
Līguma sagatavošanas maksa (vienreizēja maksa): 15,00 EUR.
Kontakti
Organizācijas nosaukums: | VAS "Latvijas dzelzceļš" |
Vārds uzvārds: | Aleksejs Šveics |
E-pasts: | aleksejs.sveics@ldz.lv |
Tālrunis: | 26019140 |
Informācija par izsoli
Dokumenti
Foto un video galerija (2)
Apraksts
Kontakti
Izsoles/konkursa laiks: | 16.09.2025 - 01.10.2025 12:00 |
Pieteikšanās termiņš: | 01.10.2025 12:00 (beidzies) |
Izsoles solis: | - |
Nodrošinājuma summa: | - |
Maksimālais nomas termiņš: | 2 gadi |
Piedāvājuma iesniegšanas vieta: | Rīga, Emīlijas Benjamiņas iela 3, LV-1050, 100 kab. |
Izsoles veids: | rakstiska |
Izsoles kārta: | Pirmreizēja |
Publicēts: | 16.09.2025 |
Pretendents piedāvājumu var iesniegt: -) papīra formā iesniedzot personīgi LDz Kancelejā vai nosūtot pa pastu: Rīga, Emīlijas Benjamiņas iela 3, LV-1050, 100 kab., uz aploksnes norādot: "Komerdarbības direkcijas Nekustamā īpašumu pakalpojumu daļa";-) elektroniskā formātā nosūtot uz info@ldz.lv ar norādi NOMAS IZSOLE.
Dokumenti
Foto un video galerija


Tirdzniecība
Kadastra apzīmējums: | 01000042004002 |
Platība (m2): | 2.25 |
Lietošanas mērķis: | 1241 - Sakaru, stacijas, termināļa telpu grupa |
Apraksts:
Iznomāšanai paredzētais objekts: vieta.
Lietošanas mērķis: Vieta pārtikas/dzērienu tirdzniecību aparātu uzstādīšanai.
Minimālā nomas maksa 700,00 EUR par vietu, bez PVN.
Papildus nomas maksai tiek piemērotas administratīvās izmaksas par līguma sagatavošanu.
Līguma sagatavošanas maksa (vienreizēja maksa): 15,00 EUR.
Kontakti
Organizācijas nosaukums: | VAS "Latvijas dzelzceļš" |
Vārds uzvārds: | Aleksejs Šveics |
E-pasts: | aleksejs.sveics@ldz.lv |
Tālrunis: | +371 26019140 |
Informācija par izsoli
Dokumenti
Foto un video galerija (1)
Apraksts
Kontakti
Izsoles/konkursa laiks: | 02.10.2025 - 16.10.2025 12:00 |
Pieteikšanās termiņš: | 16.10.2025 12:00 (beidzies) |
Izsoles solis: | - |
Nodrošinājuma summa: | - |
Maksimālais nomas termiņš: | 1 gads |
Piedāvājuma iesniegšanas vieta: | Rīga, Emīlijas Benjamiņas iela 3, LV-1050, 100 kab. |
Izsoles veids: | rakstiska |
Izsoles kārta: | Pirmreizēja |
Publicēts: | 02.10.2025 |
Pretendents piedāvājumu var iesniegt:
-) papīra formā iesniedzot personīgi LDz Kancelejā vai nosūtot pa pastu: Rīga, Emīlijas Benjamiņas iela 3, LV-1050, 100 kab., uz aploksnes norādot: "Komerdarbības direkcijas Nekustamā īpašuma pakalpojumu daļa";
-) Elektroniskā formātā nosūtot uz info@ldz.lv ar norādi NOMAS IZSOLE.
Dokumenti
Foto un video galerija

Komerctelpas (cits)
Kadastra apzīmējums: | 01000042004001 |
Platība (m2): | 1 |
Lietošanas mērķis: | 1241 - Sakaru, stacijas, termināļa telpu grupa |
Apraksts:
Iznomāšanai paredzētais objekts: daļa no nedzīvojamās telpas .
Lietošanas mērķis: vieta digitālās fotokabīnes/pārtikas/dzērienu tirdzniecību aparātu izvietošanas vajadzībām.
Papildus nomas maksai tiek piemērotas administratīvās izmaksas par līguma sagatavošanu.
Līguma sagatavošanas maksa (vienreizēja maksa): 15,00 EUR.
Kontakti
Organizācijas nosaukums: | VAS "Latvijas dzelzceļš" |
Vārds uzvārds: | Dairis Putniņš |
E-pasts: | dairis.putnins@ldz.lv |
Kontaktpersonas: D.Putniņš 20297872
Informācija par izsoli
Dokumenti
Foto un video galerija (1)
Apraksts
Kontakti
Izsoles/konkursa laiks: | 16.10.2025 - 17.11.2025 12:00 |
Pieteikšanās termiņš: | 17.11.2025 12:00 |
Izsoles solis: | - |
Nodrošinājuma summa: | - |
Maksimālais nomas termiņš: | 5 gadi |
Piedāvājuma iesniegšanas vieta: | Rīga, Emīlijas Benjamiņas iela 3, LV-1050, 100 kab. |
Izsoles veids: | rakstiska |
Izsoles kārta: | Pirmreizēja |
Publicēts: | 16.10.2025 |
Pretendents piedāvājumu var iesniegt:
-) papīra formā iesniedzot personīgi LDz Kancelejā vai nosūtot pa pastu: Rīga, Emīlijas Benjamiņas iela 3, LV-1050, 100 kab., uz aploksnes norādot: "Komerdarbības direkcijas Nekustamā īpašumu pakalpojumu daļa";
-) elektroniskā formātā nosūtot uz info@ldz.lv ar norādi NOMAS IZSOLE.
Dokumenti
Foto un video galerija

Reklāmas laukums
Kadastra apzīmējums: | 01000042004001 |
Platība (m2): | 130 |
Lietošanas mērķis: | 1241 - Sakaru, stacijas, termināļa telpu grupa |
Apraksts:
Iznomāšanai paredzētais objekts: reklāmas laukums nedzīvojamā iekštelpā 20m x 5,5m.
Lietošanas mērķis: reklāmas vieta (no ieejas pa kreisi).
Drošības depozīts: viena mēneša nomas maksas apmērā.
Papildus nomas maksai tiek piemērotas administratīvās izmaksas par līguma sagatavošanu.
Līguma sagatavošanas maksa (vienreizēja maksa): 15,00 EUR.
Kontakti
Organizācijas nosaukums: | VAS "Latvijas dzelzceļš" |
Vārds uzvārds: | Normunds Lukjanovičs |
E-pasts: | Normunds.Lukjanovics@ldz.lv |
Tālrunis: | 26019140 |
Informācija par izsoli
Dokumenti
Foto un video galerija (1)
Apraksts
Kontakti
Izsoles/konkursa laiks: | 16.10.2025 - 17.11.2025 12:00 |
Pieteikšanās termiņš: | 17.11.2025 12:00 |
Izsoles solis: | - |
Nodrošinājuma summa: | - |
Maksimālais nomas termiņš: | 5 gadi |
Piedāvājuma iesniegšanas vieta: | Rīga, Emīlijas Benjamiņas iela 3, LV-1050, 100 kab. |
Izsoles veids: | rakstiska |
Izsoles kārta: | Pirmreizēja |
Publicēts: | 16.10.2025 |
Pretendents piedāvājumu var iesniegt:
-) papīra formā iesniedzot personīgi LDz Kancelejā vai nosūtot pa pastu: Rīga, Emīlijas Benjamiņas iela 3, LV-1050, 100 kab., uz aploksnes norādot: "Komerdarbības direkcijas Nekustamā īpašumu pakalpojumu daļa";
-) elektroniskā formātā nosūtot uz info@ldz.lv ar norādi NOMAS IZSOLE.
Dokumenti
Foto un video galerija

Reklāmas laukums
Kadastra apzīmējums: | 01000042004001 |
Platība (m2): | 130 |
Lietošanas mērķis: | 1241 - Sakaru, stacijas, termināļa telpu grupa |
Apraksts:
Iznomāšanai paredzētais objekts: reklāmas laukums nedzīvojamā iekštelpā 20m x 5,5m.
Lietošanas mērķis: reklāmas vieta (no ieejas pa labi).
Drošības depozīts: viena mēneša nomas maksas apmērā.
Papildus nomas maksai tiek piemērotas administratīvās izmaksas par līguma sagatavošanu.
Līguma sagatavošanas maksa (vienreizēja maksa): 15,00 EUR.
Kontakti
Organizācijas nosaukums: | VAS "Latvijas dzelzceļš" |
Vārds uzvārds: | Normunds Lukjanovičs |
E-pasts: | Normunds.Lukjanovics@ldz.lv |
Tālrunis: | 26019140 |
Informācija par izsoli
Dokumenti
Foto un video galerija (1)
Apraksts
Kontakti
Izsoles/konkursa laiks: | 16.10.2025 - 17.11.2025 12:00 |
Pieteikšanās termiņš: | 17.11.2025 12:00 |
Izsoles solis: | - |
Nodrošinājuma summa: | - |
Maksimālais nomas termiņš: | - |
Piedāvājuma iesniegšanas vieta: | Rīga, Emīlijas Benjamiņas iela 3, LV-1050, 100 kab. |
Izsoles veids: | rakstiska |
Izsoles kārta: | Pirmreizēja |
Publicēts: | 16.10.2025 |
Dokumenti
Foto un video galerija

Reklāmas laukums
Kadastra apzīmējums: | 01000042004001 |
Platība (m2): | 175 |
Lietošanas mērķis: | 1241 - Sakaru, stacijas, termināļa telpu grupa |
Apraksts:
Iznomāšanai paredzētais objekts: reklāmas laukums nedzīvojamā iekštelpā.
Lietošanas mērķis: reklāmas vieta (virs kāpnēm)
Drošības depozīts: viena mēneša nomas maksas apmērā.
Papildus nomas maksai tiek piemērotas administratīvās izmaksas par līguma sagatavošanu.
Līguma sagatavošanas maksa (vienreizēja maksa): 15,00 EUR.
Kontakti
Organizācijas nosaukums: | VAS "Latvijas dzelzceļš" |
Vārds uzvārds: | Normunds Lukjanovičs |
E-pasts: | Normunds.Lukjanovics@ldz.lv |
Tālrunis: | 26019140 |
Informācija par izsoli
Dokumenti
Foto un video galerija (1)
Apraksts
Kontakti
Izsoles/konkursa laiks: | 16.10.2025 - 17.11.2025 12:00 |
Pieteikšanās termiņš: | 17.11.2025 12:00 |
Izsoles solis: | - |
Nodrošinājuma summa: | - |
Maksimālais nomas termiņš: | 5 gadi |
Piedāvājuma iesniegšanas vieta: | Rīga, Emīlijas Benjamiņas iela 3, LV-1050, 100 kab. |
Izsoles veids: | rakstiska |
Izsoles kārta: | Pirmreizēja |
Publicēts: | 16.10.2025 |
Pretendents piedāvājumu var iesniegt:
-) papīra formā iesniedzot personīgi LDz Kancelejā vai nosūtot pa pastu: Rīga, Emīlijas Benjamiņas iela 3, LV-1050, 100 kab., uz aploksnes norādot: "Komerdarbības direkcijas Nekustamā īpašumu pakalpojumu daļa";
-) elektroniskā formātā nosūtot uz info@ldz.lv ar norādi NOMAS IZSOLE.
Dokumenti
Foto un video galerija

Reklāmas laukums
Kadastra apzīmējums: | 01000042004001 |
Platība (m2): | 70 |
Lietošanas mērķis: | 1241 - Sakaru, stacijas, termināļa telpu grupa |
Apraksts:
Iznomāšanai paredzētais objekts: reklāmas laukums uz ēkas fasādes, 3m x 3,4m ( kopums 7 gab.)
Lietošanas mērķis: reklāmas laukums uz ēkas fasādes.
Drošības depozīts: viena mēneša nomas maksas apmērā.
Papildus nomas maksai tiek piemērotas administratīvās izmaksas par līguma sagatavošanu.
Līguma sagatavošanas maksa (vienreizēja maksa): 15,00 EUR.
Kontakti
Organizācijas nosaukums: | VAS "Latvijas dzelzceļš" |
Vārds uzvārds: | Normunds Lukjanovičs |
E-pasts: | Normunds.Lukjanovics@ldz.lv |
Tālrunis: | 26019140 |