Par mums
Par uzņēmumu
Misija un vīzija
Vērtības
Darbības virzieni
Finanšu pārskati
Uzņēmuma vēsture
Korporatīvā pārvaldība
Stratēģiskais mērķis
Korporatīvās pārvaldības modelis
Padome
Valde
Iekšējais audits
Būtiskākās politikas
Paziņojumi
Ilgtspēja
Ilgtspējīgas attīstības mērķi
Cilvēktiesību risku novērtējums uzņēmumā
Sadarbība ar ieinteresētajām pusēm
Ilgtspējas pārskati
Ētika
Ziņot par negodprātīgu rīcību
Dokumenti
Noderīgas saites
Kompetence
Ilgtspējīga būvniecība
Konkurss
Ilgtspējīgas būvniecības prasības
BIM kompetences centrs
BIM vadlīnijas
BIM pilnveide: pasākumi un semināri
BIM Projekti
Būvuzraudzība
Pasūtītāja interešu pārstāvniecība
Būvuzraudzība no ieceres līdz būvlaukumam
Noderīgi dokumenti
Darba drošība
Strādā droši! Tevi gaida mājās!
Darba drošība būvobjektos
Darba drošība apsaimniekošanā un pārvaldīšanā nodotajos objektos
Darba drošība un arodveselība
Informatīvie materiāli
Mūsdienīga darba vide
Mūsdienīga darba vide valsts nākotnei
Publiskā sektora biroja izveides vadlīnijas
Pieejas maiņa darba vides veidošanā
VNĪ pieredze aktivitātēs bāzēta biroja ieviešanā publiskajā sektorā
Dinamiskā iepirkumu sistēma
Dinamiskā iepirkumu sistēma elektroenerģijas iegādei
Pakalpojumi
Projektu attīstības pakalpojums
Pārvaldība un uzturēšana
Nekustamo īpašumu atsavināšana/pārdošana
Rīcība ar valstij piekritīgo mantu
Projekti
Projekti
Aktuālie projekti
Īstenotie projekti
Citas sadarbības
PPP Projekti
Militārā infrastruktūra
Īres mājokļi
Karjera
Vakances
Prakses programma
Karjeras pasākumi
Mentoringa programma
Sadarbība ar augstskolām
Aktualitātes
Sludinājumi
Pārdošana un iznomāšana
Iznomā / Iznomāšanai paredzēti
Pārdod
Izsoļu rezultāti - Iznomā
Izsoļu rezultāti - Pārdod
Publiskām personām un sabiedriskā labuma organizācijām
Atsavināšanai plānotie valsts NĪ
Piedāvātā kustamā manta
Nodotā kustamā manta
Valsts pirmpirkuma tiesības
Bezmantinieka sludinājumi
Citi publikāciju veidi
Nomātie nekustamie īpašumi
Nomāt paredzētie nekustamie īpašumi
Iznomātie nekustamie īpašumi
Apbūves tiesību piešķiršana
Kontakti
Klientu apkalpošanas centri
24/7
Rekvizīti
A
A
A+
lv
LV
EN
Par mums
Par uzņēmumu
Misija un vīzija
Vērtības
Darbības virzieni
Finanšu pārskati
Uzņēmuma vēsture
Korporatīvā pārvaldība
Stratēģiskais mērķis
Korporatīvās pārvaldības modelis
Padome
Valde
Iekšējais audits
Būtiskākās politikas
Paziņojumi
Ilgtspēja
Ilgtspējīgas attīstības mērķi
Cilvēktiesību risku novērtējums uzņēmumā
Sadarbība ar ieinteresētajām pusēm
Ilgtspējas pārskati
Ētika
Ziņot par negodprātīgu rīcību
Dokumenti
Noderīgas saites
Kompetence
Ilgtspējīga būvniecība
Konkurss
Ilgtspējīgas būvniecības prasības
BIM kompetences centrs
BIM vadlīnijas
BIM pilnveide: pasākumi un semināri
BIM Projekti
Būvuzraudzība
Pasūtītāja interešu pārstāvniecība
Būvuzraudzība no ieceres līdz būvlaukumam
Noderīgi dokumenti
Darba drošība
Strādā droši! Tevi gaida mājās!
Darba drošība būvobjektos
Darba drošība apsaimniekošanā un pārvaldīšanā nodotajos objektos
Darba drošība un arodveselība
Informatīvie materiāli
Mūsdienīga darba vide
Mūsdienīga darba vide valsts nākotnei
Publiskā sektora biroja izveides vadlīnijas
Pieejas maiņa darba vides veidošanā
VNĪ pieredze aktivitātēs bāzēta biroja ieviešanā publiskajā sektorā
Dinamiskā iepirkumu sistēma
Dinamiskā iepirkumu sistēma elektroenerģijas iegādei
Pakalpojumi
Projektu attīstības pakalpojums
Pārvaldība un uzturēšana
Nekustamo īpašumu atsavināšana/pārdošana
Rīcība ar valstij piekritīgo mantu
Projekti
Projekti
Aktuālie projekti
Īstenotie projekti
Citas sadarbības
PPP Projekti
Militārā infrastruktūra
Īres mājokļi
Karjera
Vakances
Prakses programma
Karjeras pasākumi
Mentoringa programma
Sadarbība ar augstskolām
Aktualitātes
Sludinājumi
Pārdošana un iznomāšana
Iznomā / Iznomāšanai paredzēti
Pārdod
Izsoļu rezultāti - Iznomā
Izsoļu rezultāti - Pārdod
Publiskām personām un sabiedriskā labuma organizācijām
Atsavināšanai plānotie valsts NĪ
Piedāvātā kustamā manta
Nodotā kustamā manta
Valsts pirmpirkuma tiesības
Bezmantinieka sludinājumi
Citi publikāciju veidi
Nomātie nekustamie īpašumi
Nomāt paredzētie nekustamie īpašumi
Iznomātie nekustamie īpašumi
Apbūves tiesību piešķiršana
Kontakti
Klientu apkalpošanas centri
24/7
Rekvizīti
Sludinājumi
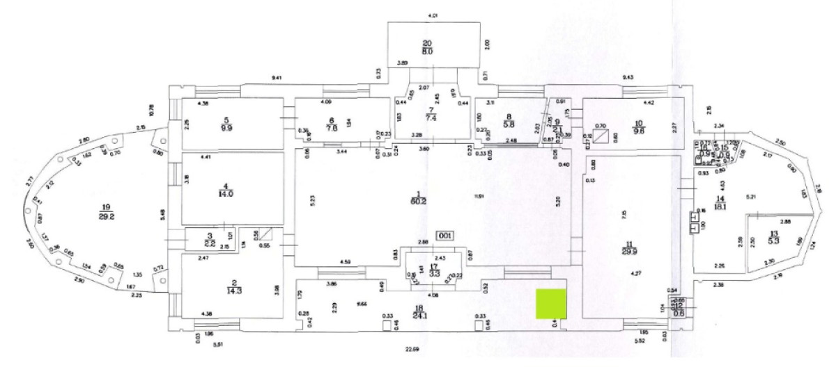
Iznomā
Lielvārde, Lielvārdes nov., Ausekļa iela 1
Atgriezties uz sarakstu
Previous
Next
Nokopēts
Iznomā
Karte
Lielvārde, Lielvārdes nov., Ausekļa iela 1
Kadastra numurs:
74130020531
Tev vēl varētu interesēt
iznomā
Zeme (cits), Tirdzniecība
Rīga, Mežaparks, Ostas prospekts 11
15 - 570 EUR
iznomā
Zeme (cits)
Rīga, Centrs, Ziedoņdārzs
165 - 200 EUR
iznomā
Zeme (cits)
Rīga, Centrs, Vērmanes dārzs
120 - 200 EUR
iznomā
Zeme (cits)
Rīga, Āgenskalns, Uzvaras parks
75 - 250 EUR