Nomājamie objekti
Nosaukums
Objekta veids
Platība (m2)
Papildu maksājumi (€/m2 mēnesī)
Noma/sākumcena (€/mēnesī)
Kopsumma bez PVN (€/mēnesī)
Informācija par izsoli
Dokumenti
Foto un video galerija (3)
Apraksts
Kontakti
Izsoles/konkursa laiks: | 27.08.2025 - 10.09.2025 17:00 |
Pieteikšanās termiņš: | 10.09.2025 13:08 (beidzies) |
Izsoles solis: | - |
Nodrošinājuma summa: | - |
Maksimālais nomas termiņš: | 12.06.2026 (ar iespēju pagarināt, ja nomnieks labticīgi pilda nomas līguma nosacījumus) |
Piedāvājuma iesniegšanas vieta: | info@sampeteranams.lv |
Izsoles veids: | rakstiska |
Izsoles kārta: | Pirmreizēja |
Publicēts: | 27.08.2025 |
Atbilstoši VSIA „Šampētera nams” nekustamo īpašumu iznomāšanas kārtībai
(pieejama www.sampeteranams.lv).
Foto un video galerija



Birojs
Kadastra apzīmējums: | 27000100306001 |
Platība (m2): | 21.72 |
Lietošanas mērķis: | 1220 - Biroja telpu grupa |
Telpas nr.: | 18 |
Telpu grupa: | 002 |
Stāvs: | 2 |
Apraksts:
Nomas objektā pieejams:
• 220 V elektroapgāde ar atsevišķu uzskaiti.
• Sanitārais mezgls koplietošanas telpā
• Centralizēta siltumapgāde
Citi iznomāšanas nosacījumi:
1) Nomniekam nav pienākums veikt kapitālieguldījumus objektā;
2) Nomas objektā pieļaujama tikai tāda saimnieciskā darbība, kura nerada piesārņojumu, smakas un trokšņus.c
Kontakti
Organizācijas nosaukums: | VSIA "Šampētera nams" |
Vārds uzvārds: | Mārtiņš Zutis |
E-pasts: | info@sampeteranams.lv |
Tālrunis: | 20040171 |
Objektu var apskatīt iepriekš vienojoties ar norādīto kontaktpersonu.
Informācija par izsoli
Dokumenti
Foto un video galerija
Apraksts
Kontakti
Izsoles/konkursa laiks: | 27.08.2025 - 10.09.2025 17:00 |
Pieteikšanās termiņš: | 10.09.2025 13:08 (beidzies) |
Izsoles solis: | - |
Nodrošinājuma summa: | - |
Maksimālais nomas termiņš: | 12.06.2026 (ar iespēju pagarināt, ja nomnieks labticīgi pilda nomas līguma nosacījumus) |
Piedāvājuma iesniegšanas vieta: | info@sampeteranams.lv |
Izsoles veids: | rakstiska |
Izsoles kārta: | Atkārtota |
Publicēts: | 27.08.2025 |
Atbilstoši VSIA „Šampētera nams” nekustamo īpašumu iznomāšanas kārtībai
(pieejama www.sampeteranams.lv).
Foto un video galerija
Birojs
Kadastra apzīmējums: | 27000100306001 |
Platība (m2): | 18.6 |
Lietošanas mērķis: | 1220 - Biroja telpu grupa |
Telpas nr.: | 9 |
Telpu grupa: | 003 |
Stāvs: | 3 |
Apraksts:
Nomas objektā pieejams:
• 220 V elektroapgāde ar atsevišķu uzskaiti.
• Sanitārais mezgls koplietošanas telpā
Citi iznomāšanas nosacījumi:
1) Nomniekam nav pienākums veikt kapitālieguldījumus objektā;
2) Nomas objektā pieļaujama tikai tāda saimnieciskā darbība, kura nerada piesārņojumu, smakas un trokšņus.
Kontakti
Organizācijas nosaukums: | VSIA "Šampētera nams" |
Vārds uzvārds: | Mārtiņš Zutis |
E-pasts: | info@sampeteranams.lv |
Tālrunis: | 20040171 |
Objektu var apskatīt iepriekš vienojoties ar norādīto kontaktpersonu.
Informācija par izsoli
Dokumenti
Foto un video galerija
Apraksts
Kontakti
Izsoles/konkursa laiks: | 27.08.2025 - 10.09.2025 17:00 |
Pieteikšanās termiņš: | 10.09.2025 13:08 (beidzies) |
Izsoles solis: | - |
Nodrošinājuma summa: | - |
Maksimālais nomas termiņš: | 12.06.2026 (ar iespēju pagarināt, ja nomnieks labticīgi pilda nomas līguma nosacījumus) |
Piedāvājuma iesniegšanas vieta: | info@sampeteranams.lv |
Izsoles veids: | rakstiska |
Izsoles kārta: | Atkārtota |
Publicēts: | 27.08.2025 |
Foto un video galerija
Birojs
Kadastra apzīmējums: | 27000100306001 |
Platība (m2): | 18.4 |
Lietošanas mērķis: | 1220 - Biroja telpu grupa |
Telpas nr.: | 8 |
Telpu grupa: | 003 |
Stāvs: | 3 |
Apraksts:
Nomas objektā pieejams:
• 220 V elektroapgāde ar atsevišķu uzskaiti.
• Sanitārais mezgls koplietošanas telpā
Citi iznomāšanas nosacījumi:
1) Nomniekam nav pienākums veikt kapitālieguldījumus objektā;
2) Nomas objektā pieļaujama tikai tāda saimnieciskā darbība, kura nerada piesārņojumu, smakas un trokšņus.
Kontakti
Organizācijas nosaukums: | VSIA "Šampētera nams" |
Vārds uzvārds: | Mārtiņš Zutis |
E-pasts: | info@sampeteranams.lv |
Tālrunis: | 20040171 |
Objektu var apskatīt iepriekš vienojoties ar norādīto kontaktpersonu.
Informācija par izsoli
Dokumenti
Foto un video galerija
Apraksts
Kontakti
Izsoles/konkursa laiks: | 27.08.2025 - 10.09.2025 17:00 |
Pieteikšanās termiņš: | 10.09.2025 13:08 (beidzies) |
Izsoles solis: | - |
Nodrošinājuma summa: | - |
Maksimālais nomas termiņš: | 12.06.2026 (ar iespēju pagarināt, ja nomnieks labticīgi pilda nomas līguma nosacījumus) |
Piedāvājuma iesniegšanas vieta: | info@sampeteranams.lv |
Izsoles veids: | rakstiska |
Izsoles kārta: | Atkārtota |
Publicēts: | 27.08.2025 |
Atbilstoši VSIA „Šampētera nams” nekustamo īpašumu iznomāšanas kārtībai
(pieejama www.sampeteranams.lv).
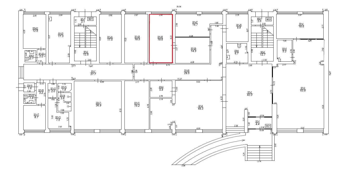
Foto un video galerija
Birojs
Kadastra apzīmējums: | 27000100306001 |
Platība (m2): | 18.6 |
Lietošanas mērķis: | 1220 - Biroja telpu grupa |
Telpas nr.: | 26 |
Telpu grupa: | 001 |
Stāvs: | 1 |
Apraksts:
Nomas objektā pieejams:
• 220 V elektroapgāde ar atsevišķu uzskaiti.
• Sanitārais mezgls koplietošanas telpā
Citi iznomāšanas nosacījumi:
1) Nomniekam nav pienākums veikt kapitālieguldījumus objektā;
2) Nomas objektā pieļaujama tikai tāda saimnieciskā darbība, kura nerada piesārņojumu, smakas un trokšņus.
Kontakti
Organizācijas nosaukums: | VSIA "Šampētera nams" |
Vārds uzvārds: | Mārtiņš Zutis |
E-pasts: | info@sampeteranams.lv |
Tālrunis: | 20040171 |
Objektu var apskatīt iepriekš vienojoties ar norādīto kontaktpersonu.