Nomājamie objekti
Nosaukums
Objekta veids
Platība (m2)
Papildu maksājumi (€/m2 mēnesī)
Noma/sākumcena (€/mēnesī)
Kopsumma bez PVN (€/mēnesī)
Informācija par izsoli
Dokumenti
Foto un video galerija (3)
Apraksts
Kontakti
Izsoles/konkursa laiks: | 23.09.2025 - 07.10.2025 12:00 |
Pieteikšanās termiņš: | 07.10.2025 12:00 (beidzies) |
Izsoles solis: | - |
Nodrošinājuma summa: | - |
Maksimālais nomas termiņš: | 1 gads |
Piedāvājuma iesniegšanas vieta: | Rīga, Emīlijas Benjamiņas iela 3, LV-1050, 100 kab. |
Izsoles veids: | rakstiska |
Izsoles kārta: | Pirmreizēja |
Publicēts: | 23.09.2025 |
Pretendents piedāvājumu var iesniegt:
-) papīra formā iesniedzot personīgi LDz Kancelejā vai nosūtot pa pastu: Rīga, Emīlijas Benjamiņas iela 3, LV-1050, 100 kab., uz aploksnes norādot: "Komerdarbības direkcijas Nekustamā īpašuma pakalpojumu daļa";
-) Elektroniskā formātā nosūtot uz info@ldz.lv ar norādi NOMAS IZSOLE.
Dokumenti
Foto un video galerija



Komerctelpas (cits)
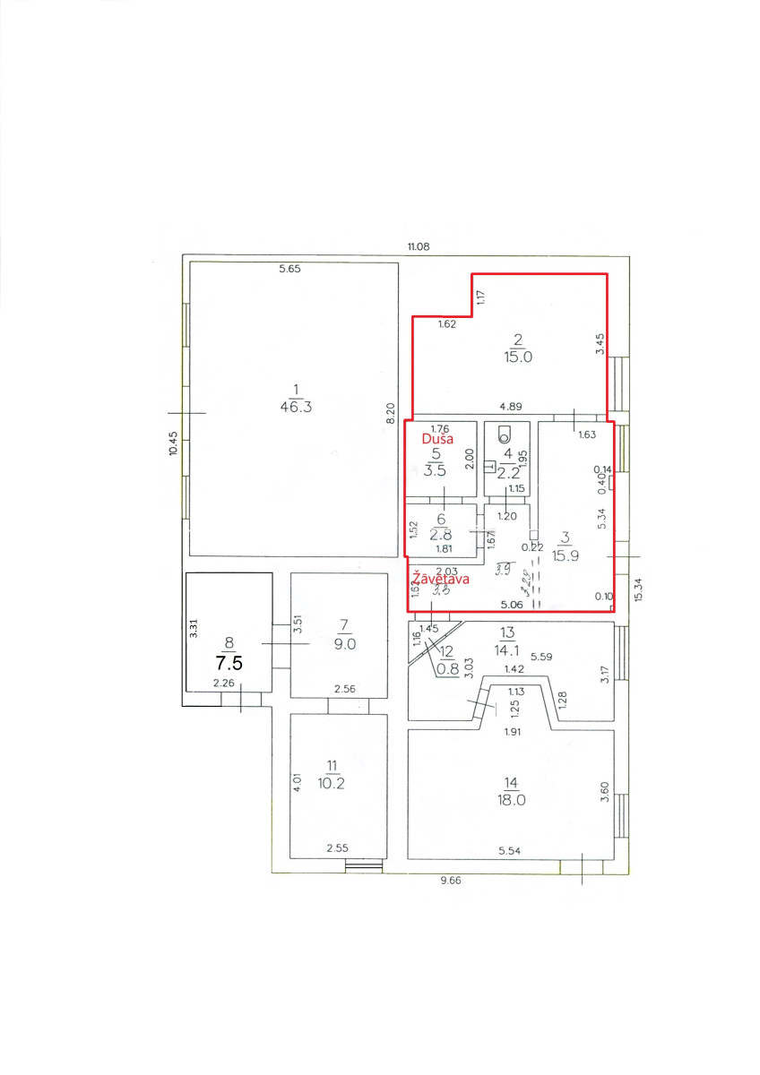
Kadastra apzīmējums: | 09000060227001 |
Platība (m2): | 448.9 |
Lietošanas mērķis: | 1220 - Biroja telpu grupa |
Apraksts:
Iznomāšanai paredzētais objekts: nedzīvojamās telpas un zemes vienības domājamā daļa.
Lietošanas mērķis: dažāda veida komercdarbība, birojs.
Papildus nomas maksai tiek piemērotas administratīvās izmaksas par līguma sagatavošanu.
Līguma sagatavošanas maksa (vienreizēja maksa): 15,00 EUR.
Kontakti
Organizācijas nosaukums: | VAS "Latvijas dzelzceļš" |
Vārds uzvārds: | Aleksejs Šveics |
E-pasts: | aleksejs.sveics@ldz.lv |
Tālrunis: | +371 26019140 |