Nomājamie objekti
Nosaukums
Objekta veids
Platība (m2)
Papildu maksājumi (€/m2 mēnesī)
Noma/sākumcena (€/mēnesī)
Kopsumma bez PVN (€/mēnesī)
Informācija par izsoli
Dokumenti
Foto un video galerija (5)
Apraksts
Kontakti
Izsoles/konkursa laiks: | 27.08.2025 - 10.09.2025 17:00 |
Pieteikšanās termiņš: | 10.09.2025 13:08 (beidzies) |
Izsoles solis: | - |
Nodrošinājuma summa: | - |
Maksimālais nomas termiņš: | 12.06.2026 (ar iespēju pagarināt, ja nomnieks labticīgi pilda nomas līguma nosacījumus) |
Piedāvājuma iesniegšanas vieta: | info@sampeteranams.lv |
Izsoles veids: | rakstiska |
Izsoles kārta: | Atkārtota |
Publicēts: | 27.08.2025 |
Atbilstoši VSIA „Šampētera nams” nekustamo īpašumu iznomāšanas kārtībai
(pieejama www.sampeteranams.lv)
Foto un video galerija





Noliktava
Kadastra apzīmējums: | 01000750873012 |
Platība (m2): | 77.1 |
Lietošanas mērķis: | 125 - Rūpnieciskās ražošanas ēkas un noliktavas |
Telpas nr.: | 1;2 |
Telpu grupa: | 012 |
Stāvs: | 1 |
Apraksts:
Nomas objektā pieejams:
• 220 V elektroapgāde ar atsevišķu uzskaiti.
Citi iznomāšanas nosacījumi:
1) Nomniekam nav pienākums veikt kapitālieguldījumus objektā;
2) Nomas objektā pieļaujama tikai tāda saimnieciskā darbība, kura nerada piesārņojumu, smakas un trokšņus.
Kontakti
Organizācijas nosaukums: | VSIA "Šampētera nams" |
Vārds uzvārds: | Mārtiņš Zutis |
E-pasts: | info@sampeteranams.lv |
Tālrunis: | 20040171 |
Objektu var apskatīt iepriekš vienojoties ar norādīto kontaktpersonu.
Informācija par izsoli
Dokumenti
Foto un video galerija (3)
Apraksts
Kontakti
Izsoles/konkursa laiks: | 27.08.2025 - 10.09.2025 17:00 |
Pieteikšanās termiņš: | 10.09.2025 13:08 (beidzies) |
Izsoles solis: | - |
Nodrošinājuma summa: | - |
Maksimālais nomas termiņš: | 12.06.2026 (ar iespēju pagarināt, ja nomnieks labticīgi pilda nomas līguma nosacījumus) |
Piedāvājuma iesniegšanas vieta: | info@sampeteranams.lv |
Izsoles veids: | rakstiska |
Izsoles kārta: | Atkārtota |
Publicēts: | 27.08.2025 |
Atbilstoši VSIA „Šampētera nams” nekustamo īpašumu iznomāšanas kārtībai
(pieejama www.sampeteranams.lv)
Foto un video galerija



Noliktava
Kadastra apzīmējums: | 01000750873012 |
Platība (m2): | 19.8 |
Lietošanas mērķis: | 125 - Rūpnieciskās ražošanas ēkas un noliktavas |
Telpas nr.: | 1 |
Telpu grupa: | 004 |
Stāvs: | 1 |
Apraksts:
Nomas objektā pieejams:
• 220 V elektroapgāde ar atsevišķu uzskaiti
Citi iznomāšanas nosacījumi:
1) Nomniekam nav pienākums veikt kapitālieguldījumus objektā;
2) Nomas objektā pieļaujama tikai tāda saimnieciskā darbība, kura nerada piesārņojumu, smakas un trokšņus.
Kontakti
Organizācijas nosaukums: | VSIA "Šampētera nams" |
Vārds uzvārds: | Mārtiņš Zutis |
E-pasts: | info@sampeteranams.lv |
Tālrunis: | 20040171 |
Objektu var apskatīt iepriekš vienojoties ar norādīto kontaktpersonu.
Informācija par izsoli
Dokumenti
Foto un video galerija (7)
Apraksts
Kontakti
Izsoles/konkursa laiks: | 27.08.2025 - 10.09.2025 17:00 |
Pieteikšanās termiņš: | 10.09.2025 13:08 (beidzies) |
Izsoles solis: | - |
Nodrošinājuma summa: | - |
Maksimālais nomas termiņš: | 12.06.2026 (ar iespēju pagarināt, ja nomnieks labticīgi pilda nomas līguma nosacījumus) |
Piedāvājuma iesniegšanas vieta: | info@sampeteranams.lv |
Izsoles veids: | rakstiska |
Izsoles kārta: | Atkārtota |
Publicēts: | 27.08.2025 |
Atbilstoši VSIA „Šampētera nams” nekustamo īpašumu iznomāšanas kārtībai.
Foto un video galerija







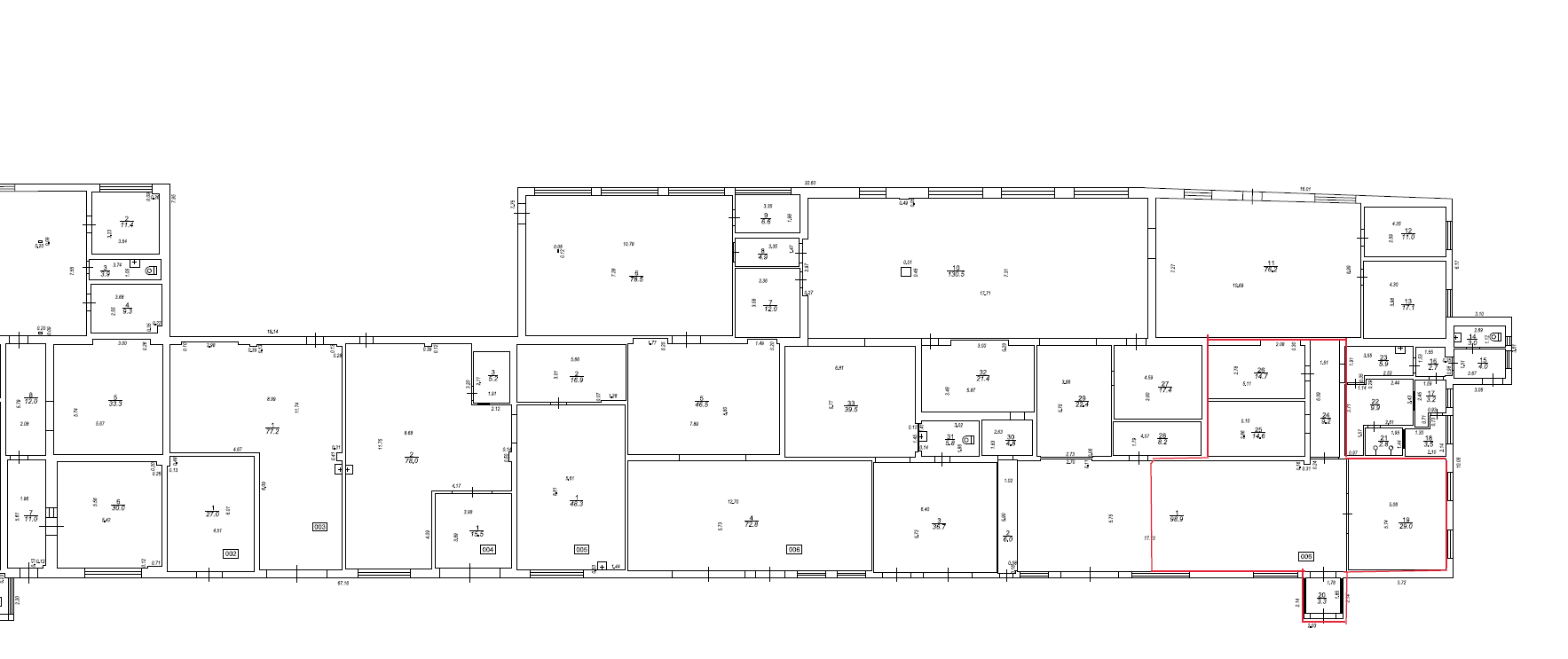
Noliktava
Kadastra apzīmējums: | 01000750873010 |
Platība (m2): | 125.5 |
Lietošanas mērķis: | 125 - Rūpnieciskās ražošanas ēkas un noliktavas |
Telpas nr.: | 1;19;24;25;26 |
Telpu grupa: | 006 |
Stāvs: | 1 |
Apraksts:
Nomas objektā pieejams:
• 220 V elektroapgāde ar atsevišķu uzskaiti.
• Sanitārtehniskā telpa pieejama koplietošanas telpā
• Iespējams pieslēgties centrālās apkures tīklam.
Citi iznomāšanas nosacījumi:
1) Nomniekam nav pienākums veikt kapitālieguldījumus objektā;
2) Nomas objektā pieļaujama tikai tāda saimnieciskā darbība, kura nerada piesārņojumu, smakas un trokšņus.
Kontakti
Organizācijas nosaukums: | VSIA "Šampētera nams" |
Vārds uzvārds: | Mārtiņš Zutis |
E-pasts: | info@sampeteranams.lv |
Tālrunis: | 20040171 |
Objektu var apskatīt iepriekš vienojoties ar norādīto kontaktpersonu.