Nomājamie objekti
Nosaukums
Objekta veids
Platība (m2)
Papildu maksājumi (€/m2 mēnesī)
Noma/sākumcena (€/mēnesī)
Kopsumma bez PVN (€/mēnesī)
Informācija par izsoli
Dokumenti
Foto un video galerija (1)
Apraksts
Kontakti
Izsoles/konkursa laiks: | 09.10.2025 - 24.10.2025 12:00 |
Pieteikšanās termiņš: | 24.10.2025 12:00 |
Izsoles solis: | - |
Nodrošinājuma summa: | - |
Maksimālais nomas termiņš: | līdz 31.12.2027. |
Piedāvājuma iesniegšanas vieta: | Rīga, Emīlijas Benjamiņas iela 3, LV-1050, 100 kab. |
Izsoles veids: | rakstiska |
Izsoles kārta: | Pirmreizēja |
Publicēts: | 09.10.2025 |
Pretendents piedāvājumu var iesniegt ar norādi NOMAS IZSOLE:
-) papīra formātā iesniedzot personīgi LDz Kancelejā vai nosūtot pa pastu: Rīga, Emīlijas Benjamiņas iela 3, LV-1050, 100 kab., uz aploksnes papildus norādot: "Komerdarbības direkcijas Nekustamā īpašuma pakalpojumu daļa";
-) Elektroniskā formātā nosūtot uz info@ldz.lv.
Dokumenti
Foto un video galerija

Birojs
Kadastra apzīmējums: | 05000083201004 |
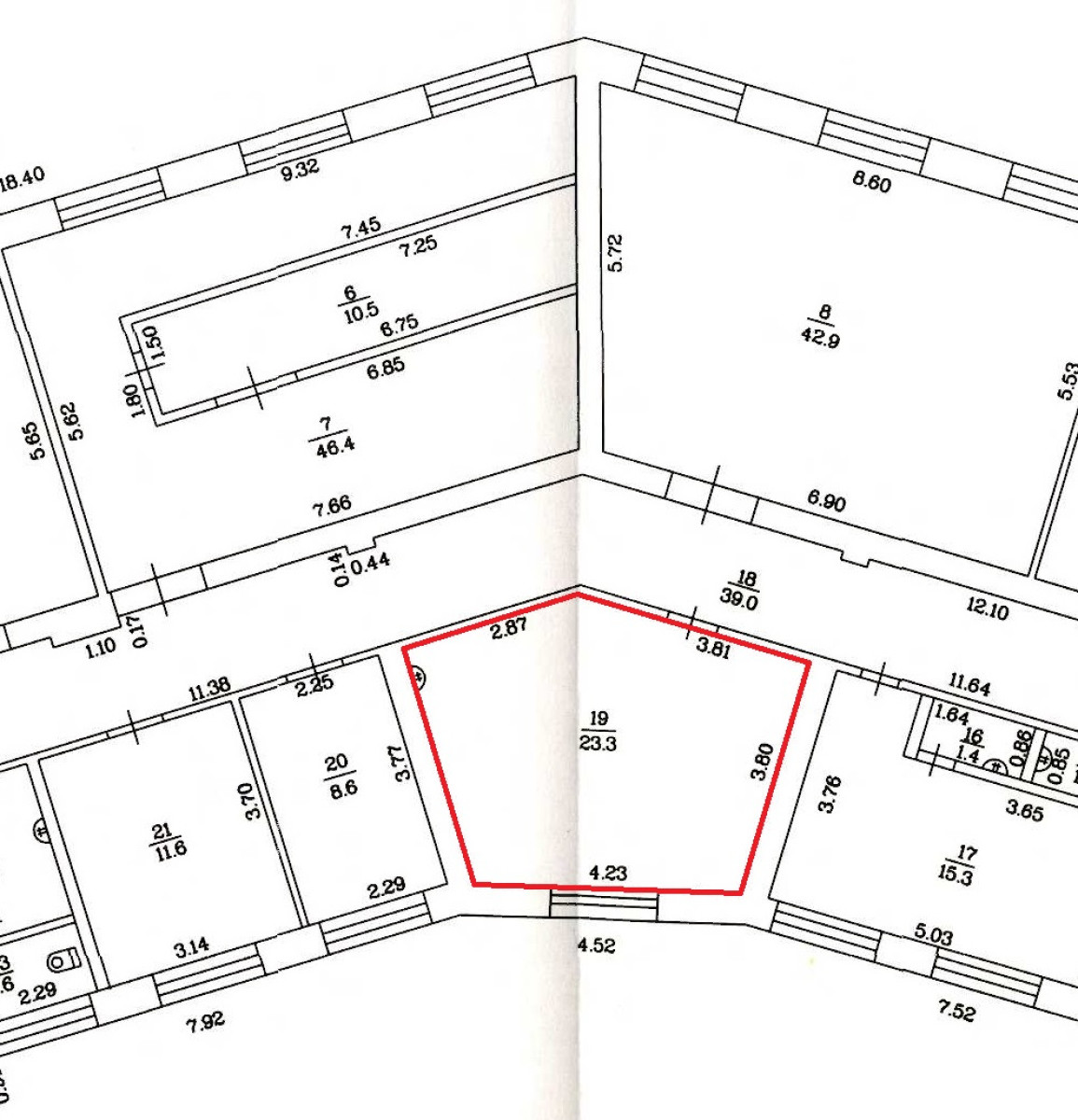
Platība (m2): | 23.3 |
Lietošanas mērķis: | 1241 - Sakaru, stacijas, termināļa telpu grupa |
Stāvs: | 1 |
Apraksts:
Iznomāšanai paredzētais objekts: nedzīvojamās telpas un zemes vienības domājamā daļa.
Lietošanas mērķis: biroja telpas 1.stāvs.
Papildus nomas maksai tiek piemērotas administratīvās izmaksas par līguma sagatavošanu.
Līguma sagatavošanas maksa (vienreizēja maksa): 15,00 EUR.
Kontakti
Organizācijas nosaukums: | VAS "Latvijas dzelzceļš" |
Vārds uzvārds: | Dairis Putniņš |
E-pasts: | dairis.putnins@ldz.lv |
Tālrunis: | 20297872 |